
Montage von Nadelbüchsen
Bei Nadelbüchsen und Nadelhülsen ist zu beachten, dass ihr dünnwandiger Außenring mit sehr großer Pressung in der Gehäusebohrung sitzt. Ein Gehäuse mit geringen Festigkeitsbereichen und Dickenunterschieden der Wandung kann zu einer lokalen Verformung der Hülse führen, was einen reibungslosen Betrieb beeinträchigen kann. Mit geometrisch gleichmäßigen Bohrungen und einer guten Lastverteilung können die besten Ergebnisse erzielt werden.
Eine axiale Fixierung der Nadelbüchsen ist wegen des großen Drucks in der Gehäusebohrung nicht erforderlich, die unmarkierte Seite der Büchse muss freiliegen und darf keinesfalls an anderen Teilen anliegen. Wenn für die Bearbeitung eine Gehäusebohrung abgesetzt ist, muss darauf geachtet werden, dass die Nadelhülse/ Nadelbüchse beim Einpressen nicht zur Anlage kommt und dadurch verformt wird.
Die zum Einsetzen der Nadelbüchse erforderliche Kraft muss stoßfrei und gleichmäßig auf den Außenrand der gekennzeichnete Seite wirken können. Daher empfiehlt es sich, eine kleine Vorrichtung mit einem geeigneten Einpressdorn zu verwenden, um eine gleichmäßige Kraft auf die im Gehäuse zentrierte Büchse auszuüben (Abb. 1).
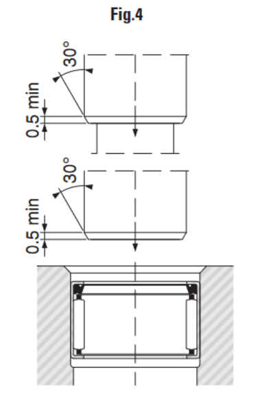
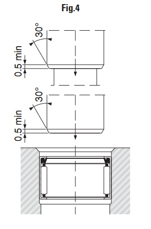
Die axiale Bewegung des Dorns sollte durch einen Anschlag des Einpressdorns am Bauteil begrenzt werden. Die Nadelbüchsen sollten nach Möglichkeit mit der offenen Seite in das Gehäuse eingeführt werden (Abb. 2). Ist dies nicht möglich, ist der Einpreßdorn am Boden der Nadelbüchse Baureihe DLF – Abbildung 3 – anzusetzen (bei Büchsen des Typs BK sollte dies nicht geschehen).
Laden Sie unseren Nadella-Nadellager-Katalog herunter, um weitere Informationen zu erhalten.




